DXF(Drawing Exchange Format,图形交换格式)是由欧特克(Autodesk)公司推出的一种CAD数据文件格式,主要用于不同CAD软件之间的矢量图形数据交换。它以ASCII或二进制文本形式存储,具有开放、可读性强、兼容性广的特点。作为AutoCAD的原生格式DWG的重要补充,DXF通过分层记录图形实体(如直线、圆、文字)、块定义、图层、线型等数据,实现了跨平台、跨系统的工程设计数据共享。它广泛应用于制造业、建筑设计、地理信息系统(GIS)等领域,是工程绘图领域事实上的通用交换标准,有效解决了专业软件间的数据互通难题。

jpg、png图片转dxf格式需要用到的工具就是翰墨AI矢量图转换器在线神器,提供网页版和桌面端软件,生成的dxf文件替代.dwg完美兼容Autodesk AutoCAD软件,可以直接将jpg或png图片转换生成dxf矢量化图像在cad里打开。非常适合工程建筑、机械生产以及其它各种工业制作行业设计和设备操作人员使用,下面来看看怎么将图片转成dxf格式。

第一步、打开翰墨ai矢量图转换工具,在输入格式那里选定DXF格式,然后上传准备好的图片素材上传到生成器中,如下图所示

第二步、翰墨AI矢量图生成器自动识别上传的jpg图片,然后进行自动转换dxf格式中,请勿关闭或者刷新

第三步、待生成完成后将dxf文件下载(默认保存路径为C:\Users\Administrator\Downloads)

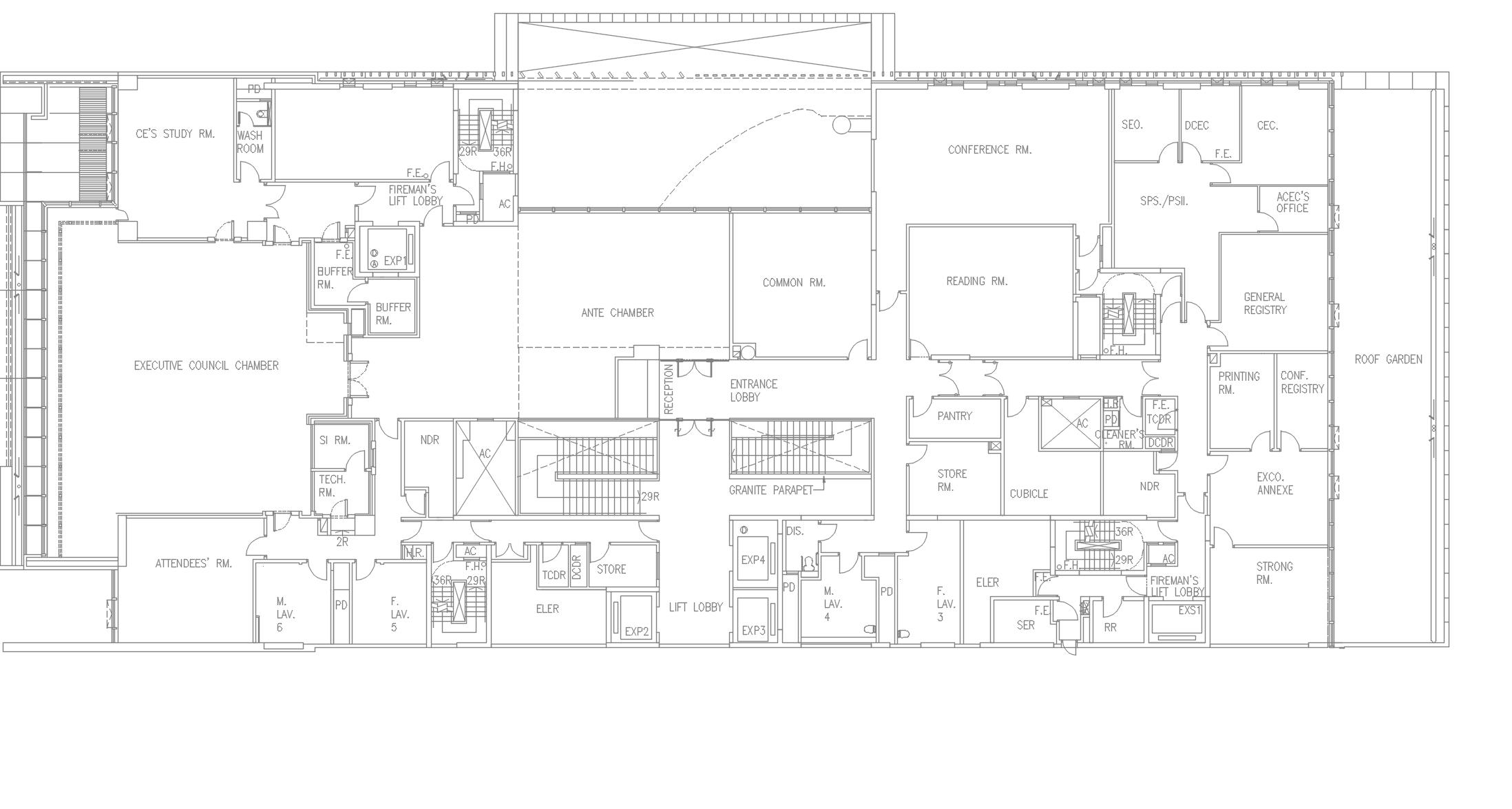
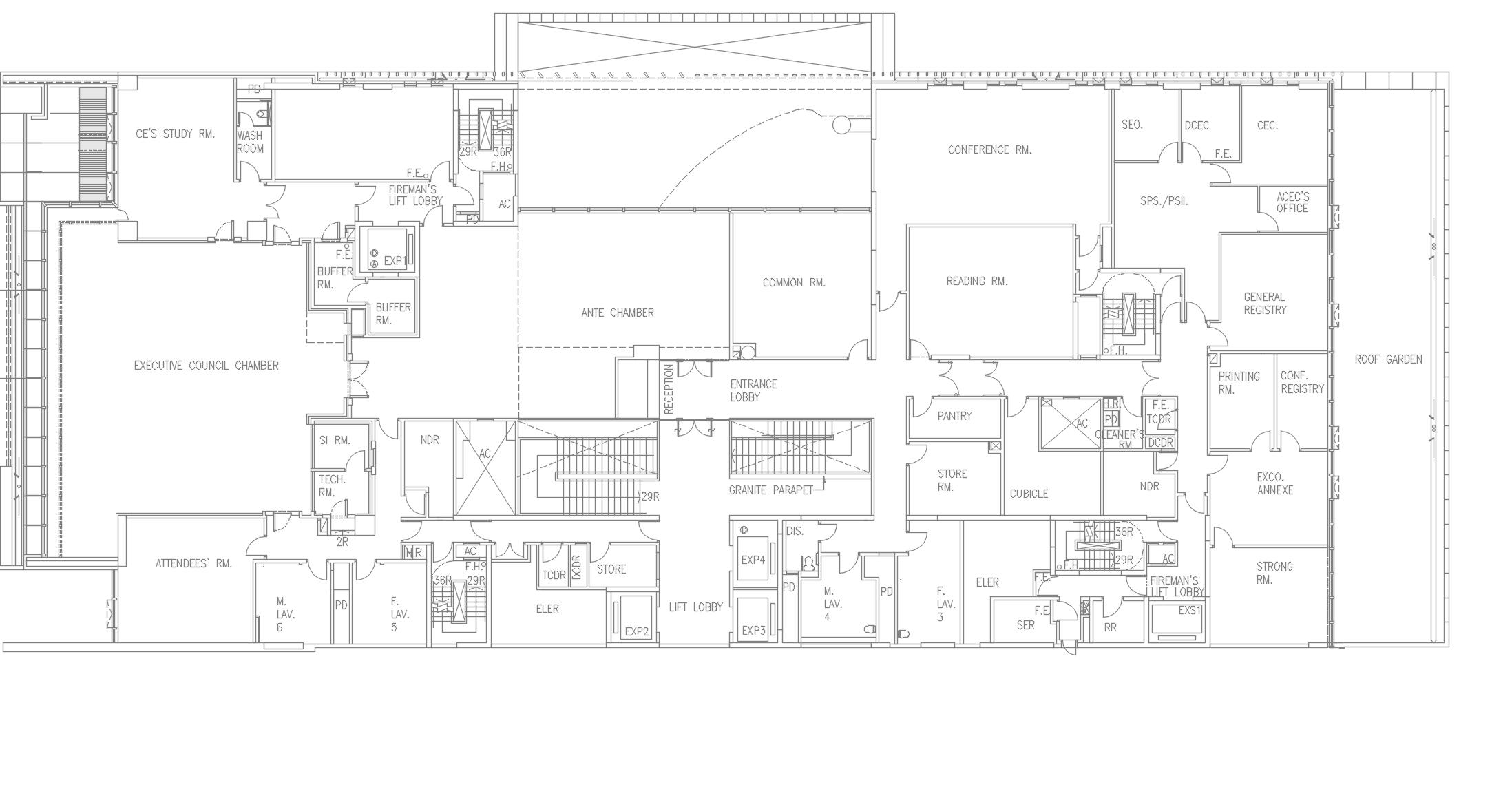
接下来我们将jpg转dxf后的文件用Autodesk AutoCAD软件打开,可以看到可以将原始素材转换为高清晰的cad可以打开的格式,而且可以进行编辑修改等操作,实现完美的兼容性。

